House Update - Architect
We finally finished up with the initial architectural portion of the project. I guess I shouldn't say "finally" because our architect was actually quicker than most of the other quotes we received.
All in all from appointing the architect to submitting the drawings was 7 weeks exactly. Wow, that's the first time I've calculated that. It feels like a long time when we own a house that is just sitting there, uninhabited (but costing us money).
To back up a few steps, here's a recap on what has happened so far:
- October 21, 2025 - Put in a formal offer for the house
- October 29, 2025 - Our offer was accepted (out of 8 offers and much back and forth!)
- Early December 2025 - Exchanged on the house (neither of us can back out without recourse but we don't own the house yet)
- January 8, 2026 - We got the keys!
- January 12, 2026 - The architect did his measured survey
- February 5, 2026 - We received our initial design drawings.
- February 9, 2026 - Met with the architect at the house because I had so many thoughts and questions that would have been hard to put in an e-mail.
- February 23, 2026 - We adjusted the drawings with the architect a few times. We have also had to decide on exterior finishes, what kind of windows we want, and the biggest decision - whether or not to keep the quirky side door (I'll chat about that below or on my Instagram). We met with a timber window company today to get a quote.
- March 2, 2026 - Our application was finally submitted to the local planning authority for review. Now we wait. We are hoping to fast track it though.
So, to elaborate, our house is in a conservation area which means that it holds important historical significance to maintain the style it was originally built in. TLDR - any exterior changes have to be approved. We can not alter the exterior of the house facing the street - no changing the roof line, no making it a funky color, no extra items in sight, and windows should be timber.
We also have to get planning permission for anything that will be affecting the party wall (ie the walls you share with your neighbors in terraced or semi-detached houses). This will include our rear extension and loft extension. For all my people in the States, it is common here to build an extension off the rear of your house which usually makes the kitchen/dining area/living space bigger although you do compromise yard space. It is also common if you need more bedrooms to convert the third floor attic or loft into usable bedrooms. Here it is typical for builders to ask if you want to go out or up.
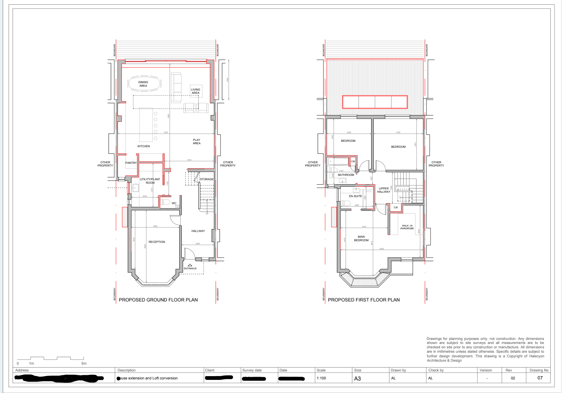
The side door saga. Our house has a little walk way between the houses for about half the distance and then the houses reconnect, so you can't actually get to the backyard from the front. The house currently has a side entrance along that walkway, which a lot of the other houses either don't, or they closed theirs up and made it a window. Nick and I both loved the originality of it, and I had already mentally built my laundry and mud room around it.
Plus, if I'm being fully transparent, I really wanted a Dutch door. That's always been a midlife dream of mine.
But, at the end of the day, it doesn't make sense to keep it as a door. We will be utilizing the walkway to house our heat pump, plus the area is so small I don't think we would functionally use it to enter the house. And, if we make it a window then we gain the space to put storage and a countertop below it. I am feeling a little bit melancholy even writing about it, but I do think it is the right decision.
I'll show you guys the before and after floor plans below. I think the more I stare at it, there are a few tweaks I would like to make. I'll write a separate post about this. I also still haven't fully connected with the back area of the house where the extension will be. I don't know how I want to purpose the space. I initially disliked the idea of having one big room for this very reason.
Do you know what takes up more of my Pinterest board than I care to admit? A breakfast nook with a cozy little L-shaped bench. I wanted to put it opposite the dining table along the sliding doors so it becomes a lovely light-filled area, but our architect suggests having that space as the living space because there will be more room to walk around a couch back there. Let me know what you think over on my Instagram (@tracislondonlife).


